È stato consegnato nelle scorse ore al Settore Lavori Pubblici il progetto di riqualificazione del campo da rugby Pino Valle di Imperia, impostato per poter ospitare anche partite di Serie A.
L’intervento, per un importo complessivo di 900 mila euro, è stato finanziato dal Governo Centrale all’interno del programma Sport e Salute rivolto al potenziamento degli impianti.
Imperia: nuova vita per il campo da Rugby “Pino Valle”
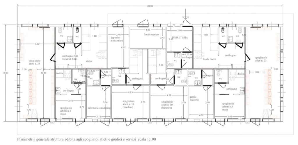
È prevista la realizzazione di quattro spogliatoi per le squadre e due per gli arbitri, l’infermeria, il locale tecnico e la segreteria. Saranno realizzate le tribune con 352 posti a sedere e saranno abbattute le barriere architettoniche per consentire la fruizione anche a persone con disabilità motorie. La scarpata di accesso sarà consolidata con tecniche di ingegneria naturalistica.
Il progetto guarda anche alla sostenibilità ambientale con una copertura di pannelli fotovoltaici, in grado di assicurare parte dell’energia necessaria all’impianto, e un pozzo artesiano per l’irrigazione del campo.
“Il progetto presentato si articola su elementi ormai consolidati in tutte le nostre opere pubbliche: la funzionalità degli spazi, la crescita di potenziale dell’impianto e un’attenzione alla sostenibilità ambientale, oltre a un indubbio miglioramento sotto il profilo architettonico ed estetico. Riteniamo possa rispondere al meglio alle esigenze di chi utilizza il campo”, commenta l’assessore ai Lavori Pubblici, Ester D’Agostino.
“Con la predisposizione di questo progetto, già finanziato e pronto a partire, chiudiamo in qualche modo il cerchio degli investimenti sulle strutture sportive cittadine. Con il sindaco Scajola abbiamo puntato molto sul caratterizzare sempre più Imperia come Città dello Sport, lavorando sugli spazi a disposizione di società e appassionati. Siamo ad esempio in dirittura di arrivo con i lavori sul polo dell’outdoor a San Lazzaro e quelli per la riqualificazione della Palestra Maggi. Con questo lavoro sul campo da rugby potremo ospitare nella nostra città partite di primo piano”, dichiara l’assessore allo Sport, Simone Vassallo.









