Imperia. È stata approvata dalla Giunta Comunale la nuova planimetria commerciale del Mercato coperto di Porto Maurizio, attraverso la quale sono state individuate le aree da destinare a box, banchi, area ristoro e aree posteggio.
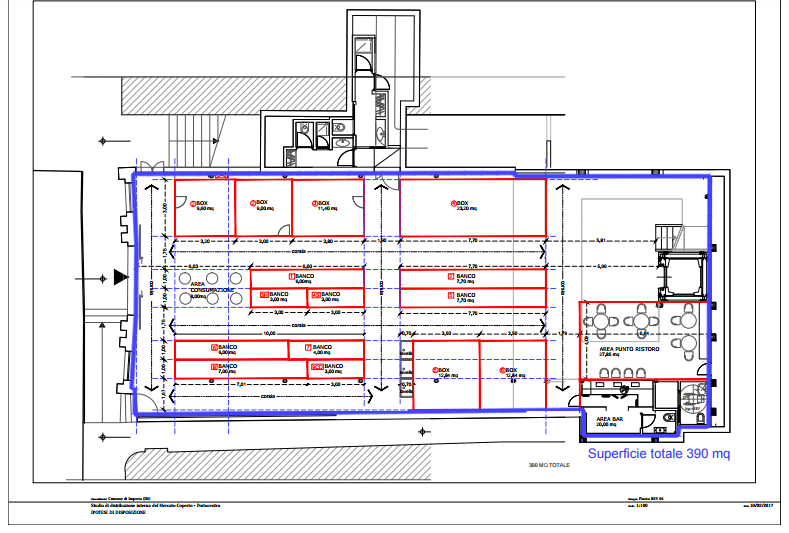
La superficie commerciale complessiva è di 390 metri quadrati e sono state individuate 6 aree box, 9 posti vendita e un’area ristoro, di cui 27,85 metri quadrati saranno destinati ad ospitare sedie e tavolini, mentre gli altri 20 metri quadrati saranno adibiti alla somministrazione di alimenti e bevande.
Inoltre, sono individuate le aree-posteggio, comprese quelle riservate ai portatori di handicap, agli imprenditori agricoli ed al commercio equo e solidale.
Ora sarà il Consiglio Comunale e la Commissione Consiliare II “Bilancio e Sviluppo Economico” a valutare la planimetria e, dopodichè, si potrà passare alla creazione di un bando per l’affidamento dei posti vendita.
“Ci saranno 3 banchi in più rispetto a prima – afferma l’assessore al Commercio del Comune di Imperia Maria Teresa Parodi – che potranno ospitare panettieri o altri tipi di negozi di alimentare, e quindi in questo modo si accresce ulteriormente l’offerta del mercato coperto”.
Ecco la divisione della superficie nel dettaglio:
– box n. 1 mq 9,60;
– box n. 2 mq 9,00;
– box n. 3 mq 11,40;
– box n. 4 mq 23,20;
– box n. 5 mq 12,84:
– box n. 6 mq 12,84:
– posteggio n. 1 mq 6
– posteggio n. 2 mq7,70
– posteggio n. 3 H mq 3,00
– posteggio n. 4 E.S. mq 3,00
– posteggio n. 5 mq 7,70
– posteggio n. 6 mq 6,00
– posteggio n. 7 mq 4,00
– posteggio n. 8 mq 7,00
– posteggio n. 9 mq 3,00
– area ristoro/somministrazione alimenti e bevande di cui mq 27,85 di area destinata ad ospitare sedie e tavolini e mq. 20 quale area adibita a somministrazione di alimenti e bevande
[wzslider autoplay=”true” interval=”6000″ transition=”‘slide’” lightbox=”true”]








